
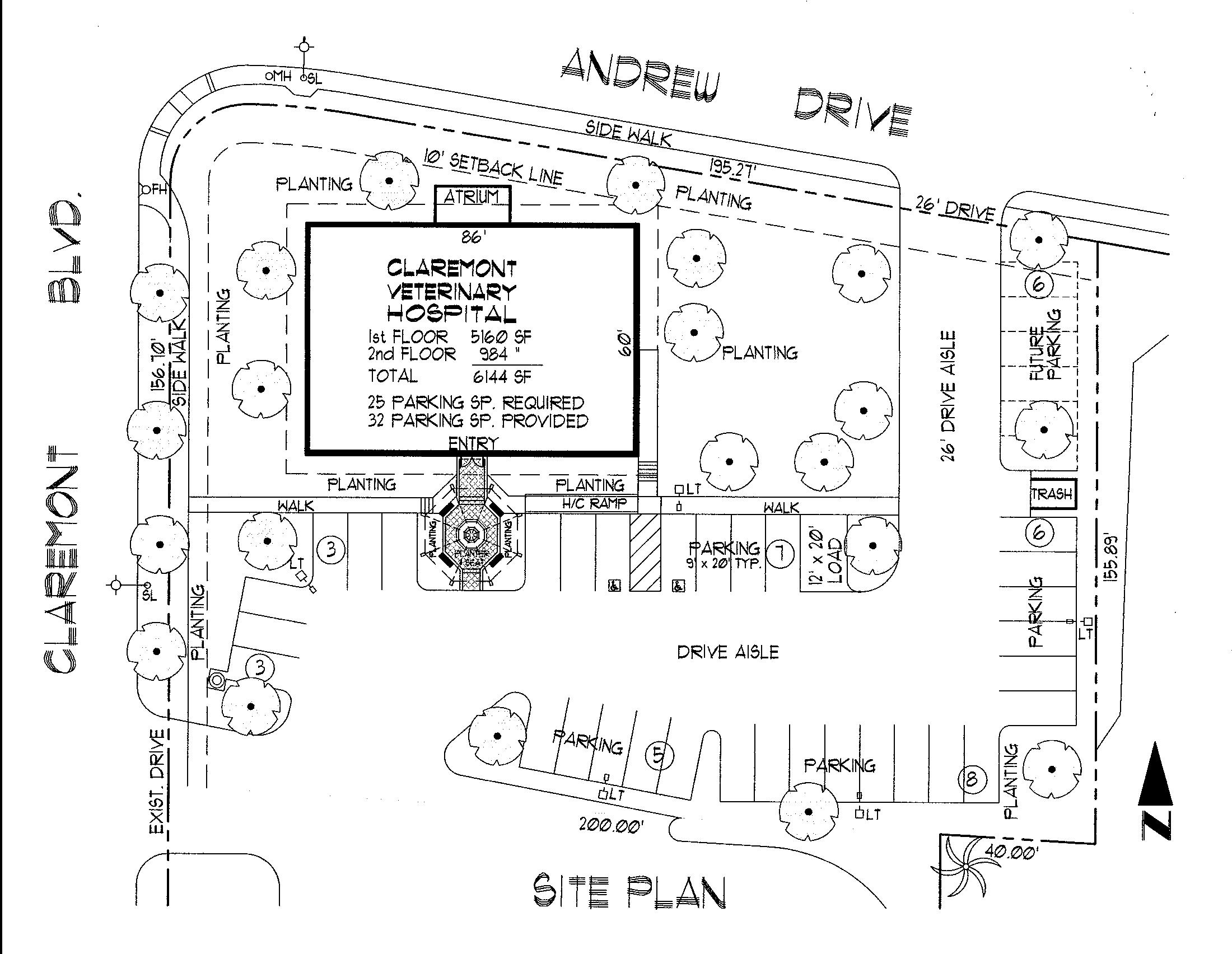
When the owner of Claremont Veterinary Hospital wanted a new freestanding two-story building for his rapidly expanding practice, he chose Bosz Arch, Inc. We were tasked with developing a showcase facility, designing specific areas for animal care, inviting customer spaces, as well as extensive site planning and landscaping on approximately an acre of property in Claremont, California, an upscale community.
Implementing the owner's thoughts and ideas, Bosz Arch, Inc. designed the 6,144 square-foot building with a smaller second story footprint to create a stepped elevation roof silhouette on all four sides of the building. Sloping metal-covered overhanging roofs highlight the design. An impressive solar grey double door entry with matching 9-foot high glass side windows on both sides of the doors welcomes customers to the facility. The octagonal freestanding gazebo with a metal-covered peaked roof matching the building is designed to accent the main entry. The gazebo's eight square, 26" high column bases are covered with river rock, paying tribute to the indigenous Claremont rock.
Interior customer service spaces at the entry are highlighted with a sloped, re-sawn wood ceiling and include a reception area, large waiting rooms, child's playspace, and pet product sales areas. Interior working areas include five exam rooms, treatment, surgery, lab/pharmacy, ICU/holding, imaging, and special procedure areas. There are also canine, feline, and isolation wards along with canine runs.
There are no piping penetrations in the sloping roof to maintain the design integrity. The completed facility met the owner's expectations.






